Vollständiges Exposé anfordern
Interesse an dieser Immobilie? Im nächsten Schritt, unten Ihre Kontaktdaten angeben und das vollständige Exposé automatisch per E-Mail erhalten.
Patrick Steinberg Makler Tel.: 03094050930
Objekt ID: 751894

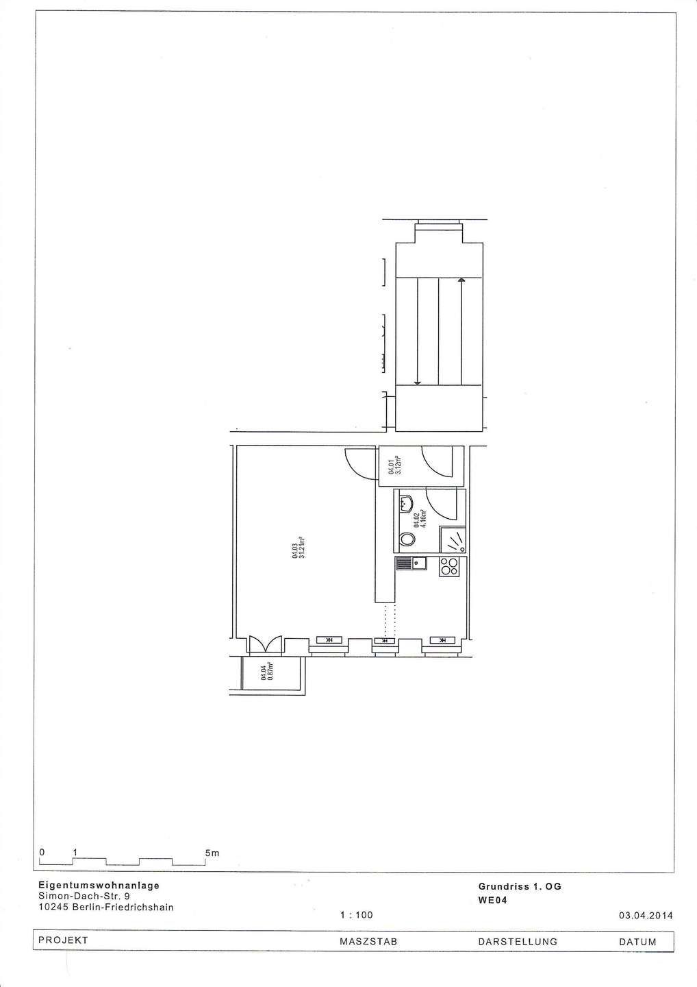
Ein-Zimmer-Deal im Simon-Dach-Kiez!

10245 Berlin
199.000 € Kaufpreis
1 Zimmer
39 m² Wohnfläche
1 Badezimmer

Highlights

Dusche
Einbauküche
Keller

Objektdaten

Kaufpreis:
199.000 €
Kaltmiete:
500 €
Kaufpreis pro m²:
5.100 € / m²
Nebenkosten:
200 €
Hausgeld:
252 €
Provisionspflichtig:
Ja
Käuferprovision:
3,57%
Wohnfläche:
39 m²
Balkon-/Terrassenfläche:
2 m²
Nutzungsart:
Wohnen
Objektart:
Etagenwohnung
Zimmer:
1
Badezimmer:
1
Balkone:
1
Etage:
1 / 6
Baujahr:
1905
Zustand:
Neuwertig
Verfügbar ab:
Eigenbedarf erscheint möglich
Ausstattung:
Standard
Badezimmer:
Dusche
Küche:
Einbauküche
Boden:
Parkettboden, Fliesenboden
Heizungsart:
Zentralheizung
Keller:
Ja

Beschreibung

Bei dem angebotenen Objekt handelt es sich um eine großzügige Einzimmerwohnung mit einem kleinen Flur im Eingangsbereich. Die Wohnung verfügt über ein gefliestes Duschbad, einen Wohn- bzw. Schlafbereich von dem aus man einen kleinen Balkon zur Simon-Dach-Straße betreten kann. Das Zimmer ist ausreichend groß um es sowohl in eine Sitz- als auch eine Schlafecke unterteilen kann. Die gut gepflegte Einbauküche befindet sich in einer separaten Küchennische, die für eine optische Trennung zum Wohn- und Schlafbereich sorgt.
Die Wohnung befindet sich in einem sehr gepflegten und wunderschönen Altbau aus 1905, im 1.OG des Vorderhaus. Im Hinterhof des Hauses gibt es einen schönen und gemütlichen Mietergarten, der den Bewohnern zur Nutzung zur Verfügung steht

Ausstattung

Der Boden der Küche ist gefliest. Die Einbauküche verfügt über ausreichend Stauraum und ein Fenster.
Der Rest der Wohnung ist mit Parkettboden ausgestattet.
Das Bad ist rundum gefliest und verfügt über eine Dusche.

Sonstiges

Die Wohnung ist seit dem 01.05.2019 zu einer aktuellen Miete von €398 Nettokalt pro Monat vermietet. Eine Speerfrist für Eigenbedarf gibt es nicht. Eine Eigenbedarfskündigung erscheint zulässig, sollte aber von jedem Interessenten gesondert juristisch geprüft werden.

Alle Angaben sind ohne Gewähr und basieren ausschließlich auf Informationen, die uns von unserem Auftraggeber zur Verfügung gestellt wurden.
Wir übernehmen keine Garantie für die Vollständigkeit, Richtigkeit und Aktualität dieser Angaben.

Lage

Die Wohnung befindet sich in bester Lage in Friedrichshain, im beliebten Simon-Dach-Kiez, mit seinen zahlreichen Cafés und Restaurants sowie allen Geschäften des täglichen Bedarfs.

Ihr Ansprechpartner

Patrick Steinberg 03094050930

Wir beraten Sie gerne, in einem persönlichen, kostenlosen und unverbindlichen Gespräch, am Telefon, Online, oder am besten vor Ort. Wir freuen uns auf Sie!

Telefonnummer:

030 9405 0930