Vollständiges Exposé anfordern
Interesse an dieser Immobilie? Im nächsten Schritt, unten Ihre Kontaktdaten angeben und das vollständige Exposé automatisch per E-Mail erhalten.
Helena Sophie Kreutz Tel.: 01763 7023054
verkauft
Objekt ID: 1343

Sofort bezugsfähige 3-Zimmer Wohnung in Berg am Laim

81671 München
--- Kaufpreis
3 Zimmer
65 m² Wohnfläche
1 Badezimmer

Highlights

Personenaufzug
Badewanne
Fenster im Bad
Einbauküche
Keller

Objektdaten

Kaufpreis:
---
Kaufpreis pro m²:
---
Hausgeld:
304 €
Provisionspflichtig:
Ja
Käuferprovision:
2,00%
Wohnfläche:
65 m²
Balkon-/Terrassenfläche:
5 m²
Nutzungsart:
Wohnen
Objektart:
Etagenwohnung
Zimmer:
3
Schlafzimmer:
2
Badezimmer:
1
Balkone:
1
Etage:
2 / 5
Baujahr:
1962
Zustand:
Voll saniert
Verfügbar ab:
ab März 2025
Ausstattung:
Standard
Badezimmer:
Badewanne, Fenster
Küche:
Einbauküche
Boden:
Parkettboden, Fliesenboden
Heizungsart:
Fernheizung
Befeuerung:
Gas
Fahrstuhlart:
Personenaufzug
Keller:
Ja

Beschreibung

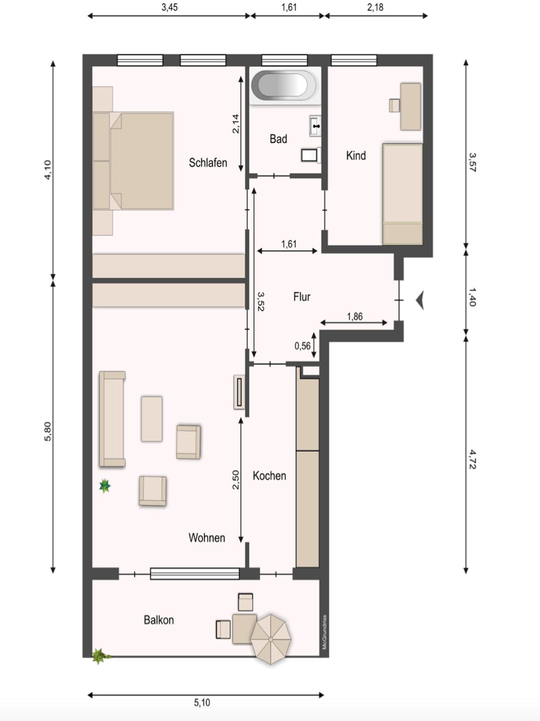
Diese hervorragend geschnittene 3-Zimmer-Wohnung wurde in 2016 das letzte mal renoviert (unter anderem wurden die Stromleitungen und der Sicherungskasten erneuert) und befindet sich in einem gepflegten Mehrfamilienhaus aus den 1960er Jahren, in zentraler Lage von München. Vom Flur aus gelangt man in alle Räume der Wohnung, dadurch eignet sich diese ideal für kleine Familien, Singles oder sogar WGs. Das großzügige und gemütlichen Wohnzimmer erreicht man durch die offene Küche. Der große Balkon mit Blick zum Garten sticht besonders hervor. Die beiden Schlafzimmer sind zum ruhigen Innenhof des Gebäudes ausgerichtet. Das kompakte Wannenbad ist sowohl am Boden, als auch an den Wänden gefliest und verfügt über ein Fenster zum lüften.
Das Objekt ist aktuell an eine nette Familie vermietet, die zum März 2025 gekündigt haben. Die aktuelle monatliche Nettokaltmiete beläuft sich auf €1.400

Ausstattung

Der Boden der Wohnräume ist mit Stäbchenparkett ausgelegt, was für eine warme und gemütliche Atmosphäre sorgt. Die Wände und Decken sind überwiegend weiß gestrichen. Die Einbauküche fügt sich perfekt in das Gesamtbild der Wohnung ein und bietet alles, was Sie zum Kochen und Genießen benötigen. Das Badezimmer ist mit einer Badewanne, einem Fenster, das für viel Helligkeit und frische Luft sorgt, Boden- und Wand-Fliesen ausgestattet. Die Fenster wurden bereits einmal modernisiert, die Fenster der gesamten Wohnung sind aus Kunststoff. Zur Wohnung gehört großer Balkon, der ausreichend Platz für eine kleine Sitzgruppe und Pflanzen bietet.
Das Objekt ist bereits an das Fernwärmesystem der Stadt angeschlossen. Vor kurzem wurden die Balkone und die Balkongeländer renoviert.

Sonstiges

Wir freuen uns darauf Ihre Fragen zu diesem Objekt zu beantworten und Ihnen dieses bei einem Vor-Ort-Termin persönlich zeigen zu können.

Lage

Die Wohnung befindet sich im Berg am Laim, einem ruhigen und dennoch verkehrsgünstigen Stadtteil von München. Der S-Bahnhof Leuchtenbergring, der Ostbahnhof, sowie diverse Bus- und Tramlinien befinden sich in Fußnähe. Die zentrale und dennoch ruhige Lage garantiert Erholung und ein abwechslungsreiches Stadtleben. Die nahe gelegene A94 bietet eine schnelle Anbindung an den Münchner Autobahnring (A99) und weiter in Richtung Osten, was für Pendler von Vorteil ist. Der Ostpark und das Michaelibad sind nur wenige Minuten entfernt. Alle Geschäfte des täglichen Bedarfs, Schulen und Kindergärten befinden sich in unmittelbarer Nähe und sind bequem zu Fuß erreichbar.

Ihr Ansprechpartner

Helena Sophie Kreutz 01763 7023054
Provisionshinweis Unsere Courtage beträgt, falls nicht individuell vereinbart 7,14 % des Verkaufspreises (inkl. der gesetzlichen Umsatzsteuer) und ist bei Kaufvertragsabschluss vom Käufer an uns zu zahlen. Handelt es sich bei dem Kunden um einen Verbraucher und hat der Maklervertrag den Nachweis der Gelegenheit zum Abschluss eines Kaufvertrages über eine Wohnung oder ein Einfamilienhaus zum Gegenstand, beträgt die Provision abweichend von vorstehendem Satz lediglich 3,57 % des Verkaufspreises inkl. gesetzlicher MwSt. sofern sich aus dem Exposé nicht ausdrücklich etwas anderes ergibt.

Wir beraten Sie gerne, in einem persönlichen, kostenlosen und unverbindlichen Gespräch, am Telefon, Online, oder am besten vor Ort. Wir freuen uns auf Sie!

Telefonnummer:

030 9405 0930