Vollständiges Exposé anfordern
Interesse an dieser Immobilie? Im nächsten Schritt, unten Ihre Kontaktdaten angeben und das vollständige Exposé automatisch per E-Mail erhalten.
Ben Michael Selbstständiger Makler Tel.: 015170117070
verkauft
Objekt ID: 451124

Bezugsfreie Zwei-Zimmerwohnung mit Balkon für Selbstnutzer

10627 Berlin
--- Kaufpreis
2 Zimmer
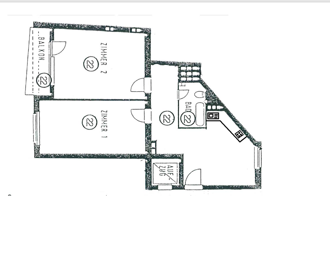
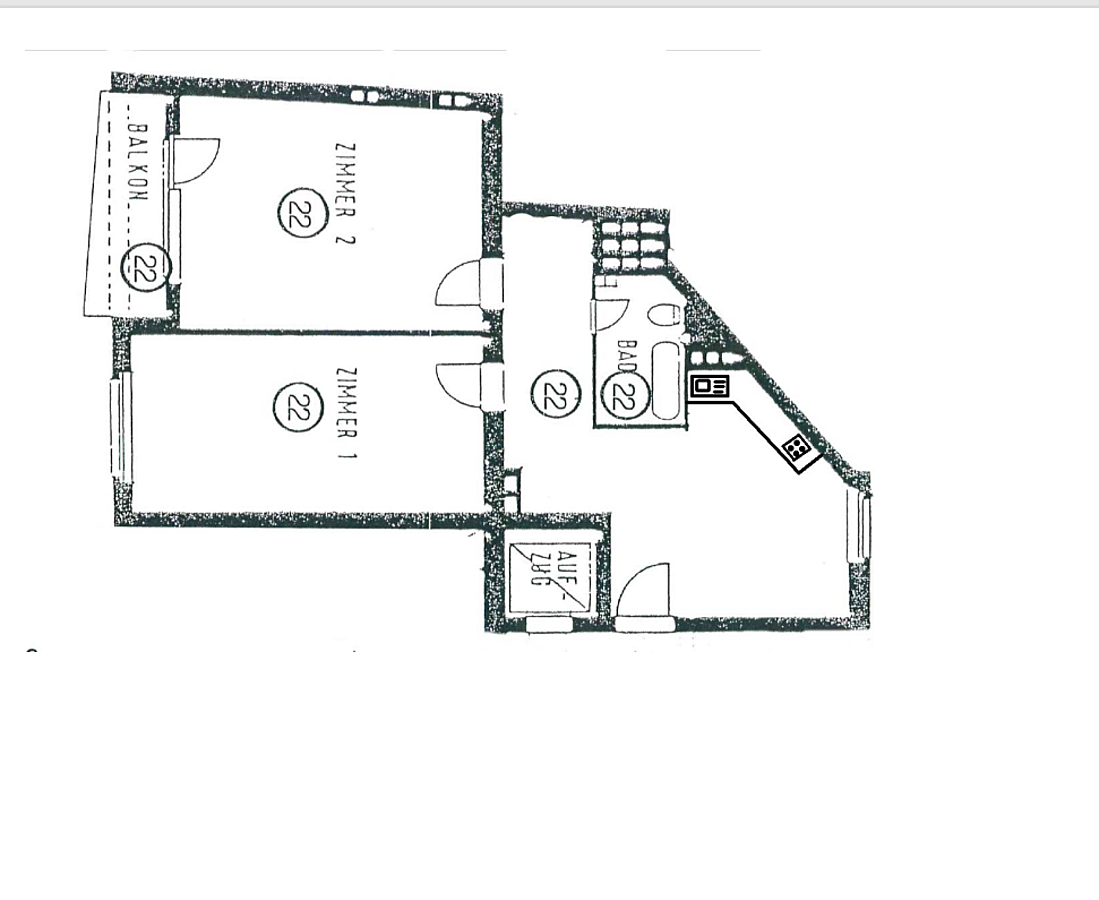
67 m² Wohnfläche
1 Badezimmer

Highlights

Personenaufzug
Badewanne
Einbauküche
Keller

Objektdaten

Kaufpreis:
---
Kaufpreis pro m²:
---
Heizkosten:
165 €
Heizkosten enthalten:
Ja
Hausgeld:
386 €
Provisionspflichtig:
Ja
Käuferprovision:
3,57 %
Wohnfläche:
67 m²
Balkon-/Terrassenfläche:
4 m²
Nutzungsart:
Wohnen
Objektart:
Etagenwohnung
Zimmer:
2
Schlafzimmer:
1
Badezimmer:
1
Balkone:
1
Etage:
4 / 5
Baujahr:
1958
Zustand:
Teilweise vollrenoviert
Verfügbar ab:
ab Sofort
Ausstattung:
Standard
Badezimmer:
Badewanne
Küche:
Einbauküche
Boden:
Laminatboden
Heizungsart:
Fernheizung
Fahrstuhlart:
Personenaufzug
Keller:
Ja

Beschreibung

Angeboten wird eine gepflegte Etagenwohnung mit Balkon im vierten Obergeschoss. Das hübsche Mehrfamilienhaus wurde 1958 erbaut und verfügt insgesamt über fünf Etagen. Der Hausgemeinschaft steht ein Aufzug zur Verfügung. Die helle, Zweizimmerwohnung verfügt über eine Wohnfläche von c.a. 65 m², die sich auf Küche, Bad, Wohnzimmer, Schlafzimmer, Flur und Balkon (anteilig) verteilen. Die zwei gleich großen Zimmer sorgen für ein angenehmes Raumgefühl. Das innenliegende Bad ist hell gefliest, verfügt über eine Badewanne und einen Handtuchwärmer. In der Wohnung wurde u. a. Laminat verlegt. Schöne Pluspunkte sind ein großzügiger Flur und der nach Osten ausgerichtete Balkon.

Ausstattung

Das Gebäude ist mit einem Aufzug ausgestattet.
Zur Wohnung gehört ein Kellerabteil.
Das Bad verfügt über eine Badewanne.
Die Küchenausstattung wird mitverkauft.

Lage

Die angebotene Wohnung befindet sich unweit der Fußgängerzone "Wilmersdorfer-Straße" in Charlottenburg-Wilmersdorf. Zahlreichen Restaurants sowie Geschäfte des täglichen Bedarfs, Ärzte, Bildungs- und Freizeiteinrichtungen sind fußläufig zu erreichen. Reichlich Gelegenheit zur Erholung bieten der Tiergarten und zahlreiche Parkanlagen im Umfeld. Gut angebunden sind Sie über die nahe gelegene Bundesstraße 2 und Autobahn 111. Die Bushaltestelle „Wilmersdorfer Str./ Kantstr.“ befindet sich direkt vor Ihrer Haustüre.

Ihr Ansprechpartner

Ben Michael 015170117070
Provisionshinweis Unsere Courtage beträgt, falls nicht individuell vereinbart 7,14 % des Verkaufspreises (inkl. der gesetzlichen Umsatzsteuer) und ist bei Kaufvertragsabschluss vom Käufer an uns zu zahlen. Handelt es sich bei dem Kunden um einen Verbraucher und hat der Maklervertrag den Nachweis der Gelegenheit zum Abschluss eines Kaufvertrages über eine Wohnung oder ein Einfamilienhaus zum Gegenstand, beträgt die Provision abweichend von vorstehendem Satz lediglich 3,57 % des Verkaufspreises inkl. gesetzlicher MwSt. sofern sich aus dem Exposé nicht ausdrücklich etwas anderes ergibt.

Wir beraten Sie gerne, in einem persönlichen, kostenlosen und unverbindlichen Gespräch, am Telefon, Online, oder am besten vor Ort. Wir freuen uns auf Sie!

Telefonnummer:

030 9405 0930