Vollständiges Exposé anfordern
Interesse an dieser Immobilie? Im nächsten Schritt, unten Ihre Kontaktdaten angeben und das vollständige Exposé automatisch per E-Mail erhalten.
Ben Michael Selbstständiger Makler Tel.: 015170117070
verkauft
Objekt ID: 1024

Einzigartiger Dachterrassentraum mit 3 Zimmern in bester Mitte-Lage

10115 Berlin
--- Kaufpreis
3 Zimmer
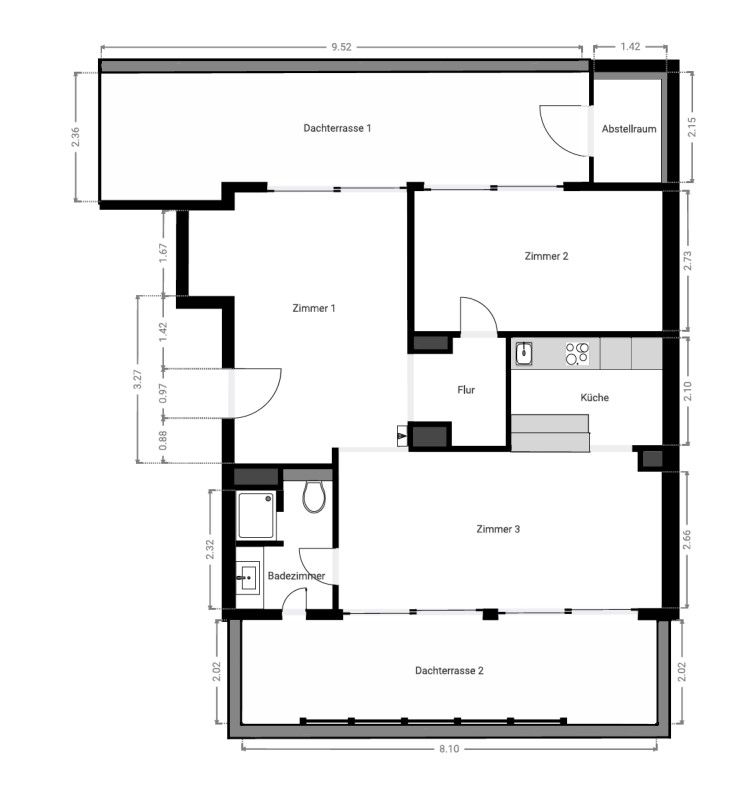
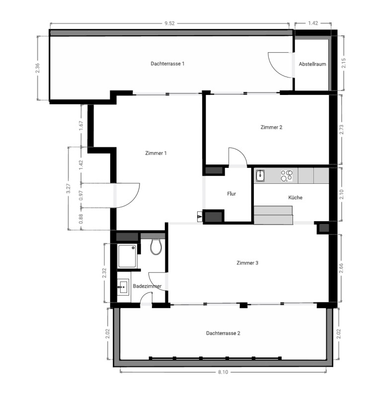
76 m² Wohnfläche
2013 Baujahr

Highlights

Personenaufzug
Dusche
Einbauküche
Keller

Objektdaten

Kaufpreis:
---
Kaufpreis pro m²:
---
Heizkosten:
124 €
Heizkosten enthalten:
Ja
Hausgeld:
401 €
Provisionspflichtig:
Ja
Käuferprovision:
2,38%
Wohnfläche:
76 m²
Nutzfläche:
66 m²
Balkon-/Terrassenfläche:
36 m²
Nutzungsart:
Wohnen
Objektart:
Dachgeschosswohnung
Zimmer:
3
Balkone:
1
Etage:
6 / 6
Baujahr:
2013
Verfügbar ab:
01.07.2023
Badezimmer:
Dusche
Küche:
Einbauküche
Boden:
Parkettboden
Heizungsart:
Fernheizung
Fahrstuhlart:
Personenaufzug
Keller:
Ja
Abstellraum:
Ja

Beschreibung

Das moderne Mehrfamilienhaus mit 14 gehoben ausgestatteten Wohneinheiten erstreckt sich über 6 Etagen. Alle Etagen sind barrierefrei über einen Aufzug zu erreichen. Zu der zum Verkauf stehenden Wohnung gehören zwei große, nach Norden und Süden ausgerichtete Terrassen mit einer Gesamtfläche von 38 m² sowie ein Kellerraum. Die Räumlichkeiten sind mit hochwertigen bodentiefen Fenstern ausgestattet. Mit einer Raumhöhe von ca. 2,95 m bieten die lichtdurchfluteten Wohnungen auf ca. 76m² Wohnfläche ein einzigartiges Wohnambiente. Das Haus verfügt über eine Tiefgarage und im Hof befindet sich ein großer verschließbarer und überdachter Fahrradabstellplatz. Darüber hinaus steht ein großzügig angelegter Gemeinschaftsgarten zur Verfügung.

Ausstattung

Die Terrassenwohnung verfügt über eine äusserst gehobene Ausstattung.Der Boden ist mit schönem, hellem Echtholzparkett ausgelegt und in allen Räumen sowie im Bad sorgt eine Fußbodenheizung für angenehme Wärme. Das moderne Bad verfügt über eine bodengleiche Dusche. Die offene Einbauküche ist mit einer Natursteinarbeitsplatte. Die Fenster der Wohnung sind mehrfach isoliert und mit einer Schallschutzverglasung ausgestattet. Zum Entspannen und Verweilen laden zwei großzügige Terrassen mit Holzdecks ein. Ein Abstellraum mit Wasseranschluss befindet sich auf der nach Norden ausgerichteten Terrasse. Die moderne Video-Gegensprechanlage gewährleistet Sicherheit.

Lage

Die Wohnanlage liegt mitten im kosmopolitischen Zentrum Berlins. In unmittelbarer Nähe gibt es viele Grünflächen und zahlreiche kulturelle Angebote. Die Tor- und Invaliedenstraße sowie der Nordbahnhof sind fußläufig erreichbar. Eine Vielzahl von Geschäften, Boutiquen, Cafés, Szenekneipen und internationalen Restaurants erhöhen die Lebensqualität zusätzlich. In wenigen Gehminuten erreicht man den beliebten Hackeschen Markt, den Prenzlauer Berg und die Friedrichstraße.

Ihr Ansprechpartner

Ben Michael 015170117070
Provisionshinweis Unsere Courtage beträgt, falls nicht individuell vereinbart 7,14 % des Verkaufspreises (inkl. der gesetzlichen Umsatzsteuer) und ist bei Kaufvertragsabschluss vom Käufer an uns zu zahlen. Handelt es sich bei dem Kunden um einen Verbraucher und hat der Maklervertrag den Nachweis der Gelegenheit zum Abschluss eines Kaufvertrages über eine Wohnung oder ein Einfamilienhaus zum Gegenstand, beträgt die Provision abweichend von vorstehendem Satz lediglich 2,38 % des Verkaufspreises inkl. gesetzlicher MwSt. sofern sich aus dem Exposé nicht ausdrücklich etwas anderes ergibt.

Wir beraten Sie gerne, in einem persönlichen, kostenlosen und unverbindlichen Gespräch, am Telefon, Online, oder am besten vor Ort. Wir freuen uns auf Sie!

Telefonnummer:

030 9405 0930